Парадная
Санкт - Петербург
Квартира в Санкт-Петербурге
Площадь 250 кв.м.
+150 кв.м. (терраса)
(2015-2017 г.г.)

Задачи
Идея
Реализация
Автор проекта - главный архитектор архитектурного бюро «Архи Идея»
Елена Крашенинникова, г. Москва

Общестроительные и отделочные работы - компания «СВК», руководитель
Сергей Кунец, г. Санкт- Петербург

Поставка мебели, светильников, текстиля - компания «МЛД», руководитель
Евгения Богатырёва, г. Москва

Изделия из дерева - компания
«Богатырёв и партнёры», руководитель
Павел Богатырёв, г. Москва

Декоративные покрытия - Марат Ка, г. Москва

Лепнина – «Петергоф», г. Москва

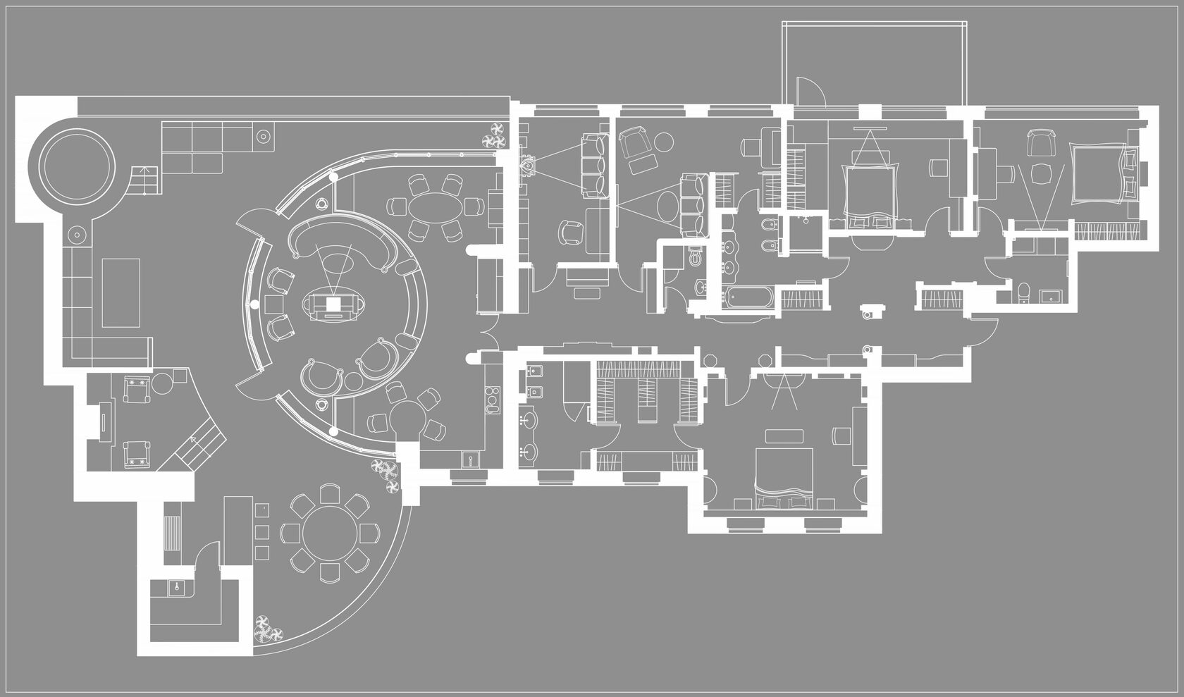
Квартира в Санкт-Петербурге, в Парадном квартале, площадью 250 квадратных метров, с выходом на открытую веранду площадью более 150 метров расположена на последнем этаже жилого здания.

Классический стиль квартиры был выбран по двум причинам: это и имперское влияние города, и готовность заказчиков к такому интерьеру. Расположение квартиры и наличие панорамных окон дало возможность использовать в интерьерах виды города и большого открытого неба, как дополнительную декорацию. Отсюда и родилась цветовая гамма объекта - много чистых голубых тонов, нежное серебро и растворяющий границы перламутр. Также стояла задача сделать доступными все качества современного дома – он должен быть комфортным и удобным для проживания, обладать самым современным техническим наполнением.

Как и на большинстве наших объектов, здесь много встроенной авторской мебели, выполненной на заказ по нашим чертежам в Москве. Использована и мебель итальянского производства с подбором отделок и тканей.
Предложение заняться этим проектом для нас было полной неожиданностью, потому что в момент появления этой задачи мы заканчивали другой объект для того же заказчика в Москве. Работа над этим проектом и быстрая реализация оказались более важным. К тому же, квартира должна была быть полностью готова к назначенному сроку — 1 сентября следующего года , торжественному моменту, когда дети пойдут в школу по новому месту жительства.

Задача- сделать удобной и уютной квартиру для семьи из 4х человек. Изначально квартира, в том виде, в котором мы получили ее в работу, была для этого неподходящей. Ее планировка требовала изменений. Необходимо было сделать приватную зону для родителей, что подразумевает наличие спальни с прилегающими к ней гардеробной и большим санузлом, детскую зону, где бы рядом находились 2 пальни для детей, небольшой холл и детский санузел, кабинет и гостевую спальню с возможностью в будущем переоборудовать ее под третью детскую.

Квартира находилась на последнем этаже жилого дома и имела свою террасу на крыше более низкой части здания. Гостиную заказчики попросили расположить рядом с ней. Вход в квартиру был на ее противоположной от террасы стороне, и эту задачу можно было решить только «прорубанием» длинного коридора через всю квартиру. Ужасный приём! Мы давно ушли от использования коридорной системы в наших проектах.

Чтобы получить вместо коридора красивое и интересное «соединительное» пространство, мы превратили его в анфиладную систему различных холлов, «нанизанных» на одну ось. Начальная точка - входная дверь, конечная - большая светлая гостиная с панорамными окнами «в пол» и подиумом с подъемом на уровень террасы. Проходя по ней, мы видим один за другим : холл детской зоны, холл перед главной спальней и библиотеку, где есть место для музицирования.

Отдельно стояла задача сделать доступными все преимущества современного жилья , наполнить квартиру новейшими системами технического оборудования и сделать пребывание в этом доме максимально комфортным.